1750 Kettner Boulevard #414

San Diego, CA 92101

$ 1,149,900

Price

2

Beds

2.5

Baths

1,375 Sq. Ft.

$836 / Sq. Ft.

69 Days On Market

Favorite

Share

Have You Been Pre-Qualified? Start Now

Listing provided by agent Chad Dannecker BRE# 01459513 at Compass and Jennifer Lange BRE# 02191190 at Compass.

Last Updated: 12 days ago

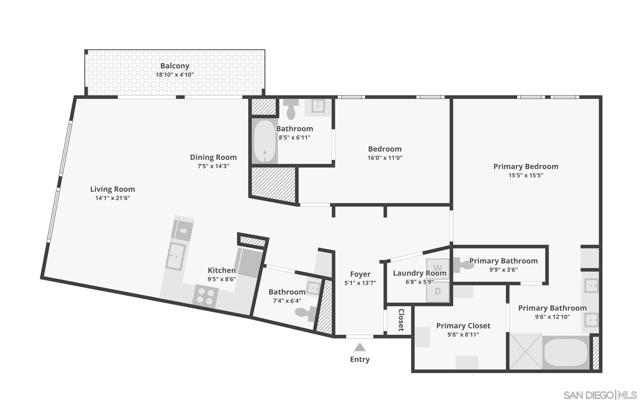
Experience breathtaking city and bay views from the top-floor, corner penthouse in DOMA—right in the heart of Little Italy. Rarely available and single-level, this 2 bedroom / 2.5 bathroom, 1,375 SF residence pairs dramatic high ceilings and an open, airy floor plan with wall-to-wall urban energy and sparkling water vistas from the living room and both bedrooms. A spacious private balcony —perfect for grilling and sunset watching— extends your living space outdoors. Two reserved, side-by-side parking spaces are conveniently located near the elevator for effortless city living. Inside, thoughtful upgrades elevate everyday life: luxury vinyl plank floors, new carpet, fresh paint, and a reimagined chef’s kitchen with quartz counters, new cabinetry, sink, and backsplash, plus a suite of newer smart appliances (cooktop and fridge). The living area features custom wood paneling by a local artist, while electric smart shades in the living room and bedroom dial in light and privacy with a tap. Both bathrooms showcase new tiling; the primary suite shines with a fully redone bath (new shower, dual sinks, lighting, cabinetry, and quartz backdrop) and a custom built-in closet. Ample cabinetry maximizes storage throughout and a spacious in-unit laundry room adds everyday convenience. Step outside your door to Little Italy’s restaurants, cafés, and weekend mercato—or head upstairs to DOMA’s rooftop deck for sunsets and the fitness room for on-site wellness. This is the one you’ve been waiting for!

Show More
Property Type Condominium
Year Built 2003
MLS # 250039678SD
Listing Type Active
Heating Electric, Forced Air
Cooling Central Air
Laundry Gas Dryer Hookup, Individual Room, Inside
Parking Community Structure, Garage

Payment Calculator

40% Complete (success)
80% Complete (danger)
20% Complete
80% Complete (danger)
60% Complete (warning)
Principal and Interest
Property Taxes
Homeowners' Insurance
HOA Dues
Mortgage Insurance
Image Calculator Icon Customize Calculations | Compare Mortgage Rates

Property Details for: 1750 Kettner Boulevard #414

Interior Features

Bathroom Information
  • 2 full baths, 1 half bath
Laundry Information
  • Gas Dryer Hookup
  • Individual Room
  • Inside
Interior Features
  • Balcony
  • Ceiling Fan(s)
  • High Ceilings
  • Living Room Balcony
  • Open Floorplan
  • Recessed Lighting
  • Stone Counters
Heating & Cooling
  • Central Air
  • Electric
  • Forced Air

Parking / Garage, Multi-Unit Information, Location Details

Interior Information
  • Balcony
  • Ceiling Fan(s)
  • High Ceilings
  • Living Room Balcony
  • Open Floorplan
  • Recessed Lighting
  • Stone Counters
Parking Information
  • Community Structure
  • Garage

Exterior Features

Property / Lot Details

Property Features
  • Bay
  • Ocean
  • Water
  • Harbor
  • Landmark
  • City Lights
Lot Information
Property Information
  • Attached
  • Tax Parcel Number: 5332311649

Nearby Businesses

  • Grocery Stores
  • Drug Stores
  • Coffee Shops
  • Restaurants
  • Health & Medical
  • Fitness & Activity
  • Arts & Entertainment
  • Nightlife & Bars
    Browse all businesses in San Diego, CA, 92101

    Tour This Condo

    TUESDAY

    16

    DEC

    WEDNESDAY

    17

    DEC

    THURSDAY

    18

    DEC

    FRIDAY

    19

    DEC

    SATURDAY

    20

    DEC

    SUNDAY

    21

    DEC

    MONDAY

    22

    DEC

    Schedule A Tour
    Ryan Case, Licensed Realtor & Team Lead

    Ryan Case

    Licensed Realtor & Team Lead

    619-314-5333 Contact Ryan Case
    Listing provided by agent Chad Dannecker BRE# 01459513 at Compass and Jennifer Lange BRE# 02191190 at Compass.

    Last Updated: 12 days ago